Downtown Hostel

Spring 2015

Downtown Baton Rouge is filled with opportunities for urban renewal, particularly through infill projects. A proposal for a mixed-use development including a hostel, bar, and Laundromat creatively provides refuge for visitors while also connecting them with the city's famed political history.

 
Section highlighting the exterior circulation of the building, as well as the connection of all programmatic elements on the second floor.

Section highlighting the exterior circulation of the building, as well as the connection of all programmatic elements on the second floor.

The city’s history and beginnings were influenced by rural Louisiana. The agricultural influences were reinforced with the election of Huey P. Long, a commoner whom was elected governor and immediately carried out political change. Large governmental buildings were constructed, as was new infrastructure, such as a highway that connected Baton Rouge to New Orleans. With new political power and influence, however, came political corruption. Governor Long and his agents ensured money to build the grand new capitol building and statewide infrastructure, but funds to fuel personal projects were hidden from state officials and the public. With this came a type of decay of the city of Baton Rouge. A city of grandeur slowly drifted to a dark period of crime and blight. Businesses began to close and poverty ensued in local neighborhoods. 

First Floor_The arrangement of spaces on the first floor allows for easy access to the bar, laundromat, and hostel through a street-level plaza, while a rear courtyard creates a hidden entrance to the hostel lobby.

First Floor_The arrangement of spaces on the first floor allows for easy access to the bar, laundromat, and hostel through a street-level plaza, while a rear courtyard creates a hidden entrance to the hostel lobby.

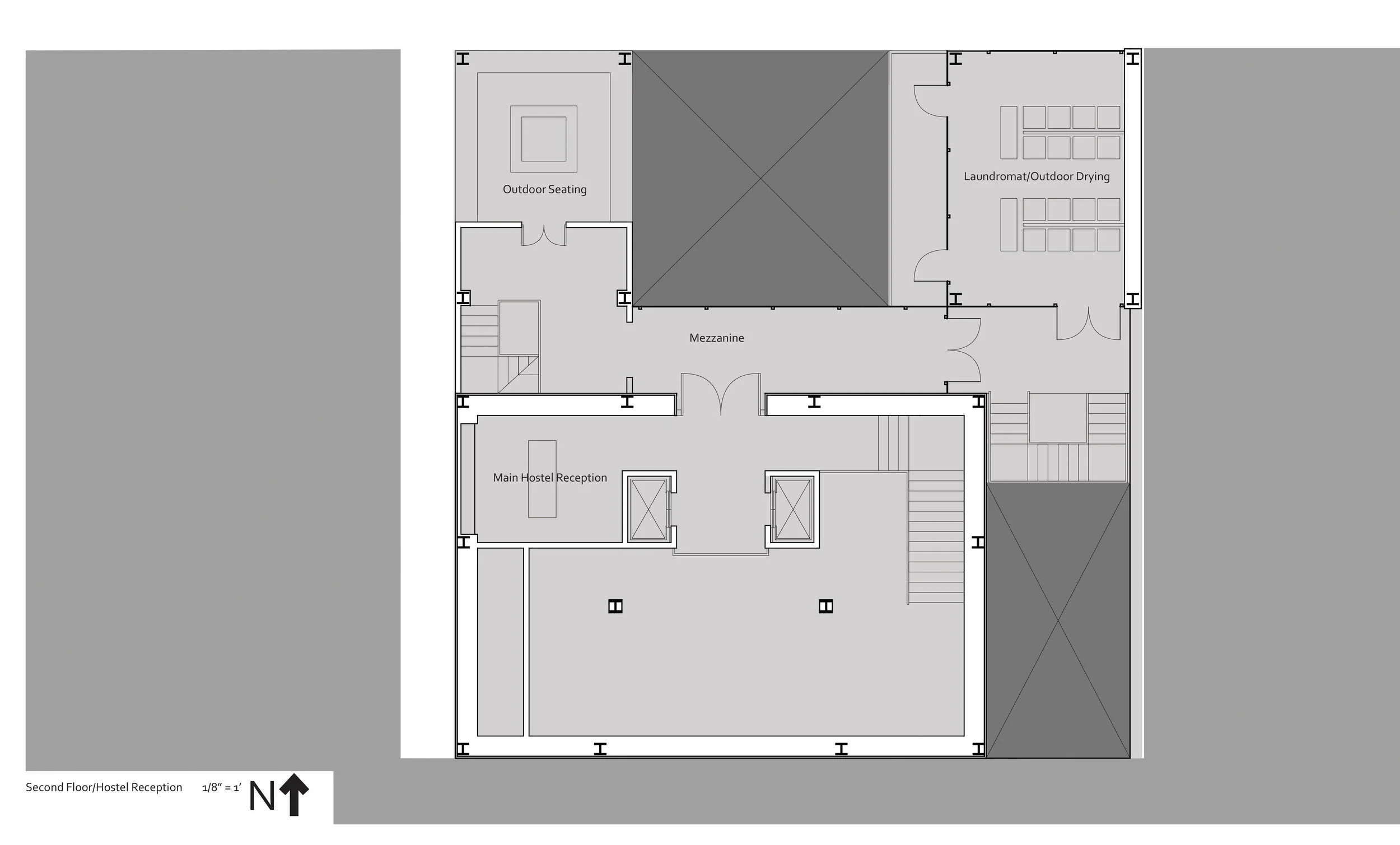
Second Floor_The second floor connects all main spaces with a mezzanine. The connected programs on the second floor of the hostel allow for short and long-term users to interact with one another.

Second Floor_The second floor connects all main spaces with a mezzanine. The connected programs on the second floor of the hostel allow for short and long-term users to interact with one another.

Private and shared bedrooms are arranged to allow views of downtown Baton Rouge and the Mississippi River. The exterior circulation engages both the private and shared spaces.

Private and shared bedrooms are arranged to allow views of downtown Baton Rouge and the Mississippi River. The exterior circulation engages both the private and shared spaces.

Upper-level private rooms allow for increased space and a more personal experience during a stay at the hostel.

Upper-level private rooms allow for increased space and a more personal experience during a stay at the hostel.

Model showing relationship between main tower and private room tower.

Model showing relationship between main tower and private room tower.

Exterior Circulation and entrance into private room.

Exterior Circulation and entrance into private room.